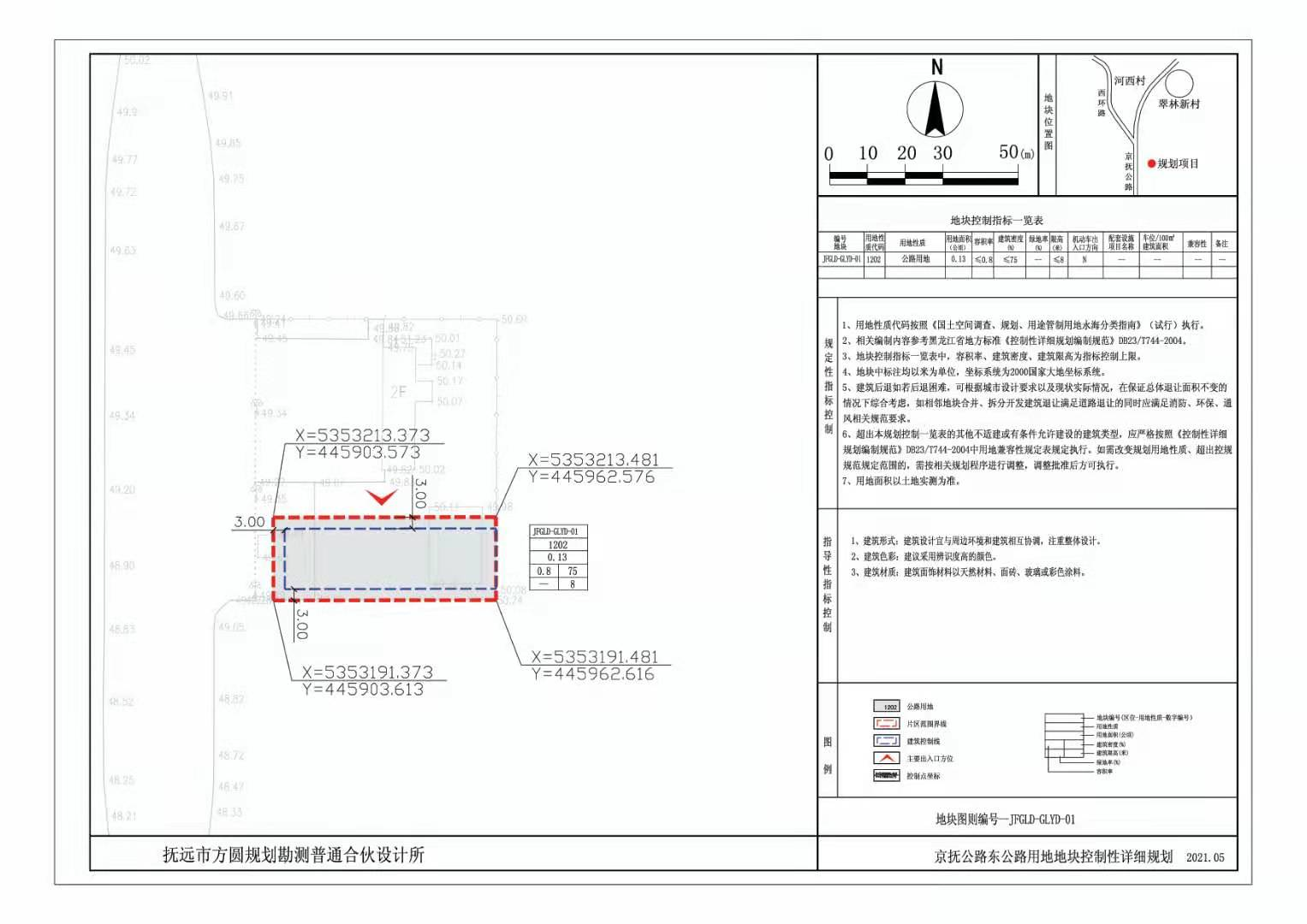
抚远市抚远镇B-10-01地块等六项控制性详细规划已获得市政府批复,批复文件为抚政函〔2021〕44号、抚政函〔2021〕48号、抚政函〔2021〕54号、抚政函〔2021〕57号、抚政函〔2021〕63号,现将规划成果向社会公示。
编辑:王 颖 审核:李 婧
附件下载: 5抚远镇B-10-01地块等六项控制性详细规划获市政府批复公示.DOC (6MB)
索引号 | 230883自然资源局11762021111725 | 主题分类 | 国土资源、能源,土地, |
---|---|---|---|
发文机构 | 自然资源局 | 发文字号 | 无 |
发布日期 | 2021-12-02 | 成文日期 | 2021-12-02 16:12 |
生效日期 | 2021-12-02 16:12 | 废止日期 | 现行有效 |
抚远市抚远镇B-10-01地块等六项控制性详细规划已获得市政府批复,批复文件为抚政函〔2021〕44号、抚政函〔2021〕48号、抚政函〔2021〕54号、抚政函〔2021〕57号、抚政函〔2021〕63号,现将规划成果向社会公示。
编辑:王 颖 审核:李 婧
附件下载: 5抚远镇B-10-01地块等六项控制性详细规划获市政府批复公示.DOC (6MB)